Préciser votre budget :
OK
Préciser les pièces :
OK
Préciser les chambres :
OK
Préciser la surface :
OK
Préciser la surface :
OK
Plus de critères
Retour aux annonces

A vendre Terrain 312 m² Saint-Paul (97460) - Réunion

220 000 € FAI* soit 705 € /m²
miniature miniature miniature miniature
Empruntez aux meilleures conditionslogo meilleur taux

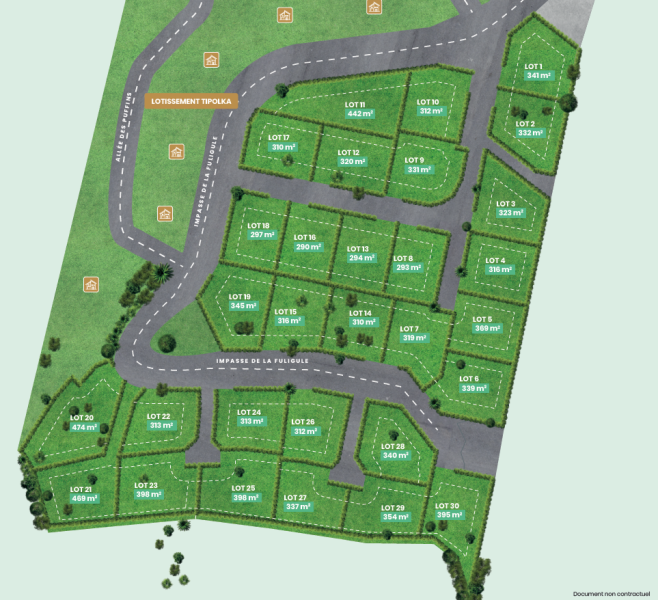
A VENDRE - PARCELLE VIABILISÉE DE 312 M2 À MARIE CAZE, LA PLAINE SAINT PAUL

Entre Savanna et la Plaine Saint Paul, CBo Territoria développe au coeur du nouveau Quartier de Marie Caze, le lotissement Zoiseau Blanc.Découvrez ces parcelles viabilisées et prêtes à bâtir, à proximité du lycée Saint-Paul IV, du CHOR et des commerces de proximité, et devenez propriétaire dans un environnement privilégié et résidentiel de l'ouest.Nous vous proposons cette parcelle de 312 m2 qui n'attend plus que votre future maison.
Prix de vente : 220 000 € FAI TTC Prix net vendeur : 208 065 € TTC Honoraires : 11 935 € TTC à la charge du vendeur
Les informations sur les risques auxquels ce bien est exposé sont disponibles sur le site Géorisques : www.georisques.gouv.fr

Caractéristiques de ce terrain à vendre à Saint-Paul (97460)

  • Surface habitable : 312 m²
  • Surface du terrain : 312 m²
  • Référence de l'annonce : 759-10
  • Prix de vente : 220 000 € FAI (Frais d'Agence Inclus)*
Empruntez aux meilleures conditionslogo meilleur taux

Cette annonce immobilière vous est proposée par :

L'AGENCE BY CBO

97438 Sainte-Marie

Ce bien vous intéresse ?
Contactez l'agence dès aujourd'hui...

En savoir plus sur l'agence L'AGENCE BY CBO

Cette agence immobilière propose à ce jour 95 biens à la vente sur Immodesiles.fr.

Vous pouvez consulter le barème d'honoraires de l'agence.

Autres terrains à vendre à Saint-Paul (97460), susceptibles de vous intéresser

parcelle de terrain avec vue mer à saint-paul 1 Terrain 349 m² Saint-Paul (97460) terrain 349 m² Belle parcelle de terrain de plus de 300 m², idéalement située à mi-hauteur de Saint-Paul, avec une vue mer exceptionnelle, offrant un cadre agréable et proche de toutes commodités. Ce terrain se trouve en zone Uc6, permettant une construction en R+1+combles avec une hauteur maximale de 9 mèt... Réf. 2855Outremer Immobilier 96 848 € soit 278 € /m² a vendre - parcelle viabilisée de 304 m2 à marie caze, la plaine saint paul 4 Terrain 304 m² Saint-Paul (97460) terrain 304 m² Entre Savanna et la Plaine Saint Paul, CBo Territoria  développe au coeur du nouveau Quartier de Marie Caze, le lotissement Les Zirondelles. Découvrez ces parcelles viabilisées et prêtes à bâtir, à proximité du lycée Saint-Paul IV, du CHOR et des commerces de proximité, et devenez propriÃ... Réf. 751-33L'agence By Cbo 198 000 € soit 651 € /m² a vendre - parcelle viabilisÉe de 341 m2 À marie caze, la plaine saint paul 2 Terrain 341 m² Saint-Paul (97460) terrain 341 m² Entre Savanna et la Plaine Saint Paul, CBo Territoria développe au coeur du nouveau Quartier de Marie Caze, le lotissement Zoiseau Blanc. Découvrez ces parcelles viabilisées et prêtes à bâtir, à proximité du lycée Saint-Paul IV, du CHOR et des commerces de proximité, et devenez propriétai... Réf. 759-01L'agence By Cbo 230 000 € soit 674 € /m² 3 Terrain 2148 m² Saint-Paul (97460) terrain 2148 m² À VENDRE en Exclusivité à SAINT PAUL DE LA REUNION, Bellemène les Hauts, à quelques minutes des commerces du centre ville de Bellemène St Paul, à 530 mètres d'altitude, venez découvrir ce terrain borné et plat, situé dans une impasse, d'environ 2 148m² avec une surface à construire d'e... Réf. WLFP-79W-WYUAct'immo 299 000 € soit 139 € /m² a vendre - parcelle viabilisÉe de 316 m2 À marie caze, la plaine saint paul 2 Terrain 316 m² Saint-Paul (97460) terrain 316 m² Entre Savanna et la Plaine Saint Paul, CBo Territoria développe au coeur du nouveau Quartier de Marie Caze, le lotissement Zoiseau Blanc.Découvrez ces parcelles viabilisées et prêtes à bâtir, à proximité du lycée Saint-Paul IV, du CHOR et des commerces de proximité, et devenez propriétair... Réf. 759-04L'agence By Cbo 210 000 € soit 665 € /m²