Préciser votre budget :
OK
Préciser les pièces :
OK
Préciser les chambres :
OK
Préciser la surface :
OK
Préciser la surface :
OK
Plus de critères
Retour aux annonces

A vendre Terrain 341 m² Saint-Paul (97460) - Réunion

230 000 € FAI* soit 674 € /m²
miniature miniature
Empruntez aux meilleures conditionslogo meilleur taux

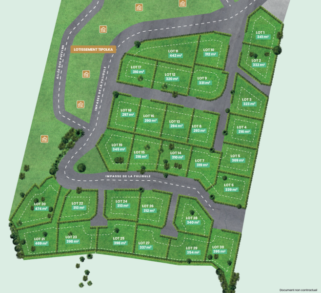
A VENDRE - PARCELLE VIABILISÉE DE 341 M2 À MARIE CAZE, LA PLAINE SAINT PAUL

Entre Savanna et la Plaine Saint Paul, CBo Territoria développe au coeur du nouveau Quartier de Marie Caze, le lotissement Zoiseau Blanc.
Découvrez ces parcelles viabilisées et prêtes à bâtir, à proximité du lycée Saint-Paul IV, du CHOR et des commerces de proximité, et devenez propriétaire dans un environnement privilégié et résidentiel de l'ouest.
Nous vous proposons cette parcelle de 341 m2 qui n'attend plus que votre future maison.
Prix de vente : 230 000 € FAI TTC Prix net vendeur : 217 523 € TTC Honoraires : 12 478 € TTC à la charge du vendeur
Les informations sur les risques auxquels ce bien est exposé sont disponibles sur le site Géorisques : www.georisques.gouv.fr

Caractéristiques de ce terrain à vendre à Saint-Paul (97460)

  • Surface habitable : 341 m²
  • Surface du terrain : 341 m²
  • Référence de l'annonce : 759-01
  • Prix de vente : 230 000 € FAI (Frais d'Agence Inclus)*
Empruntez aux meilleures conditionslogo meilleur taux

Cette annonce immobilière vous est proposée par :

L'AGENCE BY CBO

97438 Sainte-Marie

Ce bien vous intéresse ?
Contactez l'agence dès aujourd'hui...

En savoir plus sur l'agence L'AGENCE BY CBO

Cette agence immobilière propose à ce jour 95 biens à la vente sur Immodesiles.fr.

Vous pouvez consulter le barème d'honoraires de l'agence.

Autres terrains à vendre à Saint-Paul (97460), susceptibles de vous intéresser

3 Terrain 2148 m² Saint-Paul (97460) terrain 2148 m² À VENDRE en Exclusivité à SAINT PAUL DE LA REUNION, Bellemène les Hauts, à quelques minutes des commerces du centre ville de Bellemène St Paul, à 530 mètres d'altitude, venez découvrir ce terrain borné et plat, situé dans une impasse, d'environ 2 148m² avec une surface à construire d'e... Réf. WLFP-79W-WYUAct'immo 299 000 € soit 139 € /m² a vendre - grande parcelle viabilisÉe de 293 m2 À marie caze, la plaine saint paul 2 Terrain 293 m² Saint-Paul (97460) terrain 293 m² Entre Savanna et la Plaine Saint Paul, CBo Territoria développe au coeur du nouveau Quartier de Marie Caze, le lotissement Zoiseau Blanc.Découvrez ces parcelles viabilisées et prêtes à bâtir, à proximité du lycée Saint-Paul IV, du CHOR et des commerces de proximité, et devenez propriétair... Réf. 759-08L'agence By Cbo 200 000 € soit 683 € /m² parcelle de terrain avec vue mer à saint-paul 1 Terrain 349 m² Saint-Paul (97460) terrain 349 m² Belle parcelle de terrain de plus de 300 m², idéalement située à mi-hauteur de Saint-Paul, avec une vue mer exceptionnelle, offrant un cadre agréable et proche de toutes commodités. Ce terrain se trouve en zone Uc6, permettant une construction en R+1+combles avec une hauteur maximale de 9 mèt... Réf. 2852Outremer Immobilier 96 848 € soit 278 € /m² a vendre - parcelle viabilisée de 334m2 à marie caze, la plaine saint paul 2 Terrain 334 m² Saint-Paul (97460) terrain 334 m² Entre Savanna et la Plaine Saint Paul, CBo Territoria  développe au coeur du nouveau Quartier de Marie Caze, le lotissement Les Zirondelles. Découvrez ces parcelles viabilisées et prêtes à bâtir, à proximité du lycée Saint-Paul IV, du CHOR et des commerces de proximité, et devenez propriÃ... Réf. 751-02L'agence By Cbo 210 000 € soit 629 € /m² a vendre terrain de 400 m2 à bois de nefles saint-paul avec vue sur mer 1 Terrain Saint-Paul (97460) Belle opportunité pour projet d'une résidence principale localisation en zone urbanisme U6C avec vue sur mer .Pour tous renseignements complémentaires ,veuillez contacter Teddy MAQUIHA au : [coordonnées réservées] Honoraires à la charge du vendeur 14A70765, Numéro de mandat: 1033 SPV TÃ... Réf. 1033 SPVOfim 223 000 €