Préciser votre budget :
OK
Préciser les pièces :
OK
Préciser les chambres :
OK
Préciser la surface :
OK
Préciser la surface :
OK
Plus de critères
Retour aux annonces

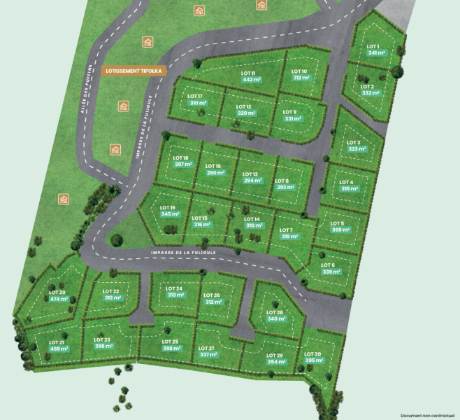
A vendre Terrain 316 m² Saint-Paul (97460) - Réunion

210 000 € FAI* soit 665 € /m²
miniature miniature
Empruntez aux meilleures conditionslogo meilleur taux

A VENDRE - PARCELLE VIABILISÉE DE 316 M2 À MARIE CAZE, LA PLAINE SAINT PAUL

Entre Savanna et la Plaine Saint Paul, CBo Territoria développe au coeur du nouveau Quartier de Marie Caze, le lotissement Zoiseau Blanc.Découvrez ces parcelles viabilisées et prêtes à bâtir, à proximité du lycée Saint-Paul IV, du CHOR et des commerces de proximité, et devenez propriétaire dans un environnement privilégié et résidentiel de l'ouest.Nous vous proposons cette parcelle de 316 m2 qui n'attend plus que votre future maison.
Prix de vente : 210 000 € FAI TTC Prix net vendeur : 198 608 € TTC Honoraires : 11 393 € TTC à la charge du vendeur
Les informations sur les risques auxquels ce bien est exposé sont disponibles sur le site Géorisques : www.georisques.gouv.fr

Caractéristiques de ce terrain à vendre à Saint-Paul (97460)

  • Surface habitable : 316 m²
  • Surface du terrain : 316 m²
  • Référence de l'annonce : 759-04
  • Prix de vente : 210 000 € FAI (Frais d'Agence Inclus)*
Empruntez aux meilleures conditionslogo meilleur taux

Cette annonce immobilière vous est proposée par :

L'AGENCE BY CBO

97438 Sainte-Marie

Ce bien vous intéresse ?
Contactez l'agence dès aujourd'hui...

En savoir plus sur l'agence L'AGENCE BY CBO

Cette agence immobilière propose à ce jour 95 biens à la vente sur Immodesiles.fr.

Vous pouvez consulter le barème d'honoraires de l'agence.

Autres terrains à vendre à Saint-Paul (97460), susceptibles de vous intéresser

a vendre - grande parcelle viabilisÉe de 293 m2 À marie caze, la plaine saint paul 2 Terrain 293 m² Saint-Paul (97460) terrain 293 m² Entre Savanna et la Plaine Saint Paul, CBo Territoria développe au coeur du nouveau Quartier de Marie Caze, le lotissement Zoiseau Blanc.Découvrez ces parcelles viabilisées et prêtes à bâtir, à proximité du lycée Saint-Paul IV, du CHOR et des commerces de proximité, et devenez propriétair... Réf. 759-08L'agence By Cbo 200 000 € soit 683 € /m² a vendre - grande parcelle viabilisÉe de 320 m2 À marie caze, la plaine saint paul 2 Terrain 320 m² Saint-Paul (97460) terrain 320 m² Entre Savanna et la Plaine Saint Paul, CBo Territoria développe au coeur du nouveau Quartier de Marie Caze, le lotissement Zoiseau Blanc.Découvrez ces parcelles viabilisées et prêtes à bâtir, à proximité du lycée Saint-Paul IV, du CHOR et des commerces de proximité, et devenez propriétair... Réf. 759-12L'agence By Cbo 210 000 € soit 656 € /m² a vendre - parcelle de 376m2 dans le lotissement ti polka à marie caze 3 Terrain 376 m² Saint-Paul (97460) terrain 376 m² Entre Savanna et la Plaine Saint Paul, CBo Territoria vous présente le lotissement Ti Polka 2 et vous propose une parcelle de 376m2  viabilisée et prête à bâtir qui n'attend plus que votre future maison. Situé au coeur du Quartier Marie Caze, à proximité du lycée Saint-Paul IV, du CHOR et ... Réf. 757-32L'agence By Cbo 230 000 € soit 612 € /m² parcelle de terrain avec vue mer à saint-paul 1 Terrain 349 m² Saint-Paul (97460) terrain 349 m² Belle parcelle de terrain de plus de 300 m², idéalement située à mi-hauteur de Saint-Paul, avec une vue mer exceptionnelle, offrant un cadre agréable et proche de toutes commodités. Ce terrain se trouve en zone Uc6, permettant une construction en R+1+combles avec une hauteur maximale de 9 mèt... Réf. 2852Outremer Immobilier 96 848 € soit 278 € /m² a vendre belle parcelle de terrain au calme à saint-paul bois rouge vue mer. 3 Terrain 1012 m² Saint-Paul (97460) terrain 1012 m² OFIM vous propose ce terrain avec une petite maison à démolir,. Idéalement bien placé dans une impasse au calme et vue mer. Ce terrain est situé à Bois Rouge Saint-Paul, à 20 minutes du centre ville de Saint-Paul. Ce terrain d'environ 1012 m2, viabilisé, n'attend plus que votre projet. Fosse... Réf. 763 LPOfim 342 000 € soit 338 € /m²