Préciser votre budget :
OK
Préciser les pièces :
OK
Préciser les chambres :
OK
Préciser la surface :
OK
Préciser la surface :
OK
Plus de critères
Retour aux annonces

A vendre Terrain 313 m² Saint-Paul (97460) - Réunion

270 000 € FAI* soit 863 € /m²
miniature miniature
Empruntez aux meilleures conditionslogo meilleur taux

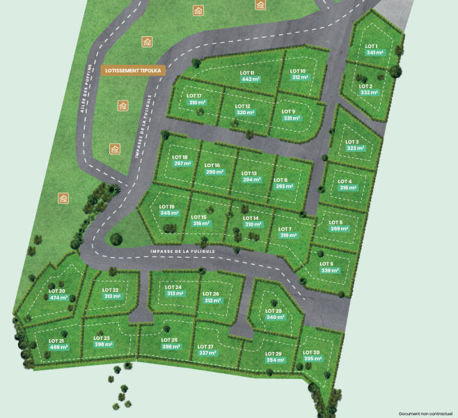
A VENDRE - PARCELLE VIABILISÉE DE 313 M2 À MARIE CAZE, LA PLAINE SAINT PAUL

Entre Savanna et la Plaine Saint Paul, CBo Territoria développe au coeur du nouveau Quartier de Marie Caze, le lotissement Zoiseau Blanc.Découvrez ces parcelles viabilisées et prêtes à bâtir, à proximité du lycée Saint-Paul IV, du CHOR et des commerces de proximité, et devenez propriétaire dans un environnement privilégié et résidentiel de l'ouest.Nous vous proposons cette parcelle de 313 m2 qui n'attend plus que votre future maison.
Prix de vente : 270 000 € FAI TTC Prix net vendeur : 255 353 € TTC Honoraires : 14 648 € TTC à la charge du vendeur
Les informations sur les risques auxquels ce bien est exposé sont disponibles sur le site Géorisques : www.georisques.gouv.fr

Caractéristiques de ce terrain à vendre à Saint-Paul (97460)

  • Surface habitable : 313 m²
  • Surface du terrain : 313 m²
  • Référence de l'annonce : 759-22
  • Prix de vente : 270 000 € FAI (Frais d'Agence Inclus)*
Empruntez aux meilleures conditionslogo meilleur taux

Cette annonce immobilière vous est proposée par :

L'AGENCE BY CBO

97438 Sainte-Marie

Ce bien vous intéresse ?
Contactez l'agence dès aujourd'hui...

En savoir plus sur l'agence L'AGENCE BY CBO

Cette agence immobilière propose à ce jour 95 biens à la vente sur Immodesiles.fr.

Vous pouvez consulter le barème d'honoraires de l'agence.

Autres terrains à vendre à Saint-Paul (97460), susceptibles de vous intéresser

a vendre - parcelle viabilisÉe de 316 m2 À marie caze, la plaine saint paul 2 Terrain 316 m² Saint-Paul (97460) terrain 316 m² Entre Savanna et la Plaine Saint Paul, CBo Territoria développe au coeur du nouveau Quartier de Marie Caze, le lotissement Zoiseau Blanc.Découvrez ces parcelles viabilisées et prêtes à bâtir, à proximité du lycée Saint-Paul IV, du CHOR et des commerces de proximité, et devenez propriétair... Réf. 759-04L'agence By Cbo 210 000 € soit 665 € /m² 5 Terrain 530 m² Saint-Paul (97460) terrain 530 m² TERRAIN A VENDRE A SAINT PAUL DE LA REUNION, A BELLEMENE, à 340 mètres d'altitude, venez découvrir un terrain borné et plat d'une surface d'environ 530 m² . Vous profiterez d'une micro station neuve installée, d'un raccordement en eau potable, d'un permis construire accepté et d'une vue mer ... Réf. J6R4-1NB-MR5Act'immo 298 250 € soit 563 € /m² a vendre - grande parcelle viabilisÉe de 293 m2 À marie caze, la plaine saint paul 2 Terrain 293 m² Saint-Paul (97460) terrain 293 m² Entre Savanna et la Plaine Saint Paul, CBo Territoria développe au coeur du nouveau Quartier de Marie Caze, le lotissement Zoiseau Blanc.Découvrez ces parcelles viabilisées et prêtes à bâtir, à proximité du lycée Saint-Paul IV, du CHOR et des commerces de proximité, et devenez propriétair... Réf. 759-08L'agence By Cbo 200 000 € soit 683 € /m² terrain a batir 1 Terrain 1289 m² Saint-Paul (97460) terrain 1289 m² Terrain Constructible avec Vue Dégagée - Un Cadre de Vie IdéalDécouvrez ce terrain constructible de 1289 m², niché dans un environnement paisible et offrant une vue dégagée qui vous coupera le souffle. Imaginez-vous construire votre maison de rêve sur cette parcelle en pente, où chaque ang... Réf. 2468-ARHArh Immobilier 248 400 € soit 193 € /m² a vendre - parcelle viabilisée de 291 m2 à marie caze, la plaine saint paul 3 Terrain 291 m² Saint-Paul (97460) terrain 291 m² Entre Savanna et la Plaine Saint Paul, CBo Territoria  développe au coeur du nouveau Quartier de Marie Caze, le lotissement Les Zirondelles. Découvrez ces parcelles viabilisées et prêtes à bâtir, à proximité du lycée Saint-Paul IV, du CHOR et des commerces de proximité, et devenez propriÃ... Réf. 751-34L'agence By Cbo 190 000 € soit 653 € /m²