Préciser votre budget :
OK
Préciser les pièces :
OK
Préciser les chambres :
OK
Préciser la surface :
OK
Préciser la surface :
OK
Plus de critères
Retour aux annonces

A vendre Terrain 217 m² Saint-Pierre (97410) - Réunion

232 000 € FAI* soit 1 069 € /m²
miniature miniature miniature miniature miniature miniature
Empruntez aux meilleures conditionslogo meilleur taux

chez PRMI / Terrain constructible "Quartier pêcheur" Terre-Sainte (97410)

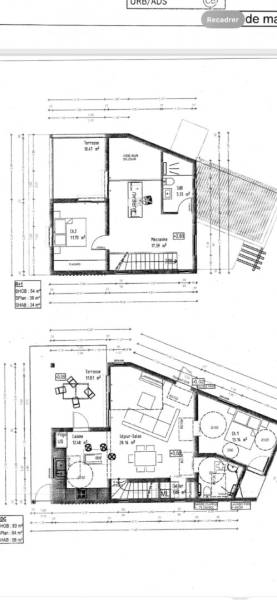
Emplacement très recherché : "Quartier pêcheur" Terre-Sainte ! Résidentiel et calme, proche de la promenade des Alizés, de la plage, des restaurants, des écoles et bien sûr des commerces du centre ville de Saint-Pierre ! Terrain de 217 m2 : plat, nu, à bâtir. Celui-ci bénéficie déjà d'un permis de construire obtenu en 2022. Pour y édifier une maison individuelle de 92 m2 (habitable) de type R+1. Voir plan + photos. -- IDEAL POUR UNE RESIDENCE PRINCIPALE / SECONDAIRE / LOCATION SAISONNIERE -- Informations complémentaires : - borné (via géomètre) - non viabilisé (mais raccordements proches y compris au tout à l'égout) - non clôturé -exposition (nord) ps : pas de copropriété, pas de lotissement et pas de servitude ! Visite possible avec le spécialiste de Saint-Pierre : Arnaud TREMOULET. Tél : [coordonnées réservées] ou [coordonnées réservées] Mail : [coordonnées réservées] Honoraires à la charge du vendeur. Bien non soumis au DPE. Les informations sur les risques naturels auxquels ce bien peut-être exposé sont disponibles sur le site : georisques.gouv.fr

Caractéristiques de ce terrain à vendre à Saint-Pierre (97410)

  • Surface habitable : 217 m²
  • Surface du terrain : 217 m²
  • Référence de l'annonce : 7414AT
  • Prix de vente : 232 000 € FAI (Frais d'Agence Inclus)*
  • * Honoraires à la charge du vendeur
Empruntez aux meilleures conditionslogo meilleur taux

Cette annonce immobilière vous est proposée par :

PRMI Sud/Ouest

Ce bien vous intéresse ?
Contactez l'agence dès aujourd'hui...

En savoir plus sur l'agence PRMI Sud/Ouest

Cette agence immobilière propose à ce jour 62 biens à la vente sur Immodesiles.fr.

Vous pouvez consulter le barème d'honoraires de l'agence.

Autres terrains à vendre à Saint-Pierre (97410), susceptibles de vous intéresser

grands-bois - st pierre - parcelle viabilisÉe de 405m2 : kaisary 2 4 Terrain 405 m² Saint-Pierre (97410) terrain 405 m² À la recherche d'un terrain prêt à accueillir vos rêves de maison dans le sud de l’île ? Découvrez nos parcelles prêtes à construire nichées aux portes de Saint-Pierre (direction sud-ouest). La résidence Kaisary vous promet une qualité de vie incomparable. Idéalement situé dans le qua... Réf. 762-2-14L'agence By Cbo 198 000 € soit 489 € /m² a vendre terrain avec vue mer secteur résidentiel à mont vert les bas 3 Terrain Saint-Pierre (97410) Joli terrain d'environ 200 m², situé dans un secteur résidentiel calme et recherché. Vue dégagée sur la mer. Cadre idéal pour un projet de construction dans un environnement paisible. Bien rare et très intéressant dans le secteur. A VOIR RAPIDEMENT ! Mandat : 2330 T Prix : 115 000 € Con... Réf. 2330TOfim 115 000 € saint pierre 97410 - terrain plat À bÂtir - beau potentiel - secteur prisÉ 2 Terrain 580 m² Saint-Pierre (97410) terrain 580 m² SAINT PIERRE 97410 - Dans le secteur prisé de la RAVINE DES CABRIS, venez découvrir cette parcelle plate d'environ 580 m2 soit environ 390 m2 cloturable, avec maison à terminer ou à démolir. Située au cœur d'un quartier calme et résidentiel, à proximité des commodités. À VOIR RAPIDEMENT ... Réf. 24-4994Le Forum Immobilier 192 000 € soit 331 € /m² terrain  de 602m2 a vendre st-pierre  ville ile de la reunion 5 Terrain 5 pièces 602 m² Saint-Pierre (97410) 5 pièces, 1 chambre, terrain 602 m² terrain constructible vendre de 602M2 (parcelles 491 sur le plan) situ en ville de st-pierre 5 minutes du centre ville, en zone UD, hauteur de construction: 15 mtres l'gout et 20 mtres au fatage soit du R+5+ comble, COS 60%, Ce bien vous est propos au prix de 600000 euros, honoraires la charge ... Réf. 6433KTeka Immobilier 600 000 € soit 997 € /m² saint pierre 97410 - terrain plat avec vue degagee - emplacement de choix 6 Terrain 450 m² Saint-Pierre (97410) terrain 450 m² SAINT PIERRE 97410 - Idéalement situé sur les hauteurs et à 15 minutes du centre-ville, cette parcelle d'environ 470 m2 n'attend plus que votre projet. En zone UF. Dans un environnement paisble. Accès facile. Vue dégagée. À VOIR Ref 5292 Les informations sur les risques auxquels ce bien est e... Réf. 25-5292Le Forum Immobilier 159 000 € soit 353 € /m²