Préciser votre budget :
OK
Préciser les pièces :
OK
Préciser les chambres :
OK
Préciser la surface :
OK
Préciser la surface :
OK
Plus de critères
Retour aux annonces

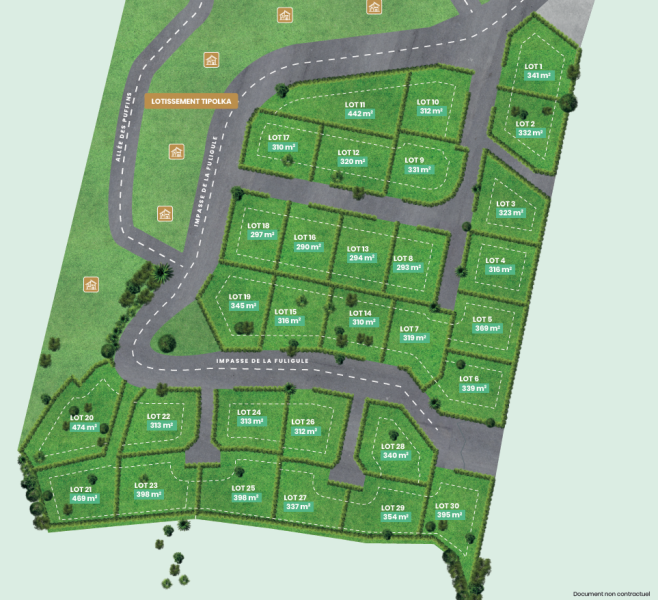
A vendre Terrain 442 m² Saint-Paul (97460) - Réunion

320 000 € FAI* soit 724 € /m²
miniature miniature miniature miniature
Empruntez aux meilleures conditionslogo meilleur taux

A VENDRE - PARCELLE VIABILISÉE DE 442 M2 À MARIE CAZE, LA PLAINE SAINT PAUL

Entre Savanna et la Plaine Saint Paul, CBo Territoria développe au coeur du nouveau Quartier de Marie Caze, le lotissement Zoiseau Blanc.Découvrez ces parcelles viabilisées et prêtes à bâtir, à proximité du lycée Saint-Paul IV, du CHOR et des commerces de proximité, et devenez propriétaire dans un environnement privilégié et résidentiel de l'ouest.Nous vous proposons cette parcelle de 442 m2 qui n'attend plus que votre future maison.
Prix de vente : 320 000 € FAI TTC Prix net vendeur : 302 640 € TTC Honoraires : 17 360 € TTC à la charge du vendeur
Les informations sur les risques auxquels ce bien est exposé sont disponibles sur le site Géorisques : www.georisques.gouv.fr

Caractéristiques de ce terrain à vendre à Saint-Paul (97460)

  • Surface habitable : 442 m²
  • Surface du terrain : 442 m²
  • Référence de l'annonce : 759-11
  • Prix de vente : 320 000 € FAI (Frais d'Agence Inclus)*
Empruntez aux meilleures conditionslogo meilleur taux

Cette annonce immobilière vous est proposée par :

L'AGENCE BY CBO

97438 Sainte-Marie

Ce bien vous intéresse ?
Contactez l'agence dès aujourd'hui...

En savoir plus sur l'agence L'AGENCE BY CBO

Cette agence immobilière propose à ce jour 95 biens à la vente sur Immodesiles.fr.

Vous pouvez consulter le barème d'honoraires de l'agence.

Autres terrains à vendre à Saint-Paul (97460), susceptibles de vous intéresser

a vendre terrain de 400 m2 à bois de nefles saint-paul avec vue sur mer 1 Terrain Saint-Paul (97460) Belle opportunité pour projet d'une résidence principale localisation en zone urbanisme U6C avec vue sur mer .Pour tous renseignements complémentaires ,veuillez contacter Teddy MAQUIHA au : [coordonnées réservées] Honoraires à la charge du vendeur 14A70765, Numéro de mandat: 1033 SPV TÃ... Réf. 1033 SPVOfim 223 000 € terrain a batir 1 Terrain 1289 m² Saint-Paul (97460) terrain 1289 m² Terrain Constructible avec Vue Dégagée - Un Cadre de Vie IdéalDécouvrez ce terrain constructible de 1289 m², niché dans un environnement paisible et offrant une vue dégagée qui vous coupera le souffle. Imaginez-vous construire votre maison de rêve sur cette parcelle en pente, où chaque ang... Réf. 2468-ARHArh Immobilier 248 400 € soit 193 € /m² a vendre - parcelle viabilisÉe de 310 m2 À marie caze, la plaine saint paul 3 Terrain 310 m² Saint-Paul (97460) terrain 310 m² Entre Savanna et la Plaine Saint Paul, CBo Territoria développe au coeur du nouveau Quartier de Marie Caze, le lotissement Zoiseau Blanc.Découvrez ces parcelles viabilisées et prêtes à bâtir, à proximité du lycée Saint-Paul IV, du CHOR et des commerces de proximité, et devenez propriétair... Réf. 759-17L'agence By Cbo 250 000 € soit 806 € /m² a vendre - parcelle viabilisée de 313m2 à marie caze, la plaine saint paul 5 Terrain 313 m² Saint-Paul (97460) terrain 313 m² Entre Savanna et la Plaine Saint Paul, CBo Territoria développe au coeur du nouveau Quartier de Marie Caze, le lotissement Les Zirondelles. Découvrez ces parcelles viabilisées et prêtes à bâtir, à proximité du lycée Saint-Paul IV, du CHOR et des commerces de proximité, et devenez propriét... Réf. 751-16L'agence By Cbo 200 000 € soit 639 € /m² 6 Terrain 595 m² Saint-Paul (97460) terrain 595 m² TERRAIN A VENDRE A SAINT PAUL DE LA REUNION, A BELLEMENE, à 340 mètres d'altitude, venez découvrir un terrain borné et plat d'une surface d'environ 595 m² . Vous profiterez d'une micro station neuve qui sera installée par le propriétaire, d'un raccordement en eau potable, d'un permis constru... Réf. NENP-BY8-5ESAct'immo 334 375 € soit 562 € /m²