Préciser votre budget :
OK
Préciser les pièces :
OK
Préciser les chambres :
OK
Préciser la surface :
OK
Préciser la surface :
OK
Plus de critères
Retour aux annonces

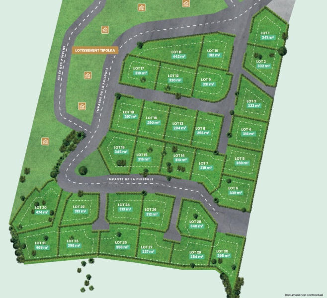
A vendre Terrain 332 m² Saint-Paul (97460) - Réunion

220 000 € FAI* soit 663 € /m²
miniature miniature
Empruntez aux meilleures conditionslogo meilleur taux

A VENDRE - PARCELLE VIABILISÉE DE 332 M2 À MARIE CAZE, LA PLAINE SAINT PAUL

Entre Savanna et la Plaine Saint Paul, CBo Territoria développe au coeur du nouveau Quartier de Marie Caze, le lotissement Zoiseau Blanc.Découvrez ces parcelles viabilisées et prêtes à bâtir, à proximité du lycée Saint-Paul IV, du CHOR et des commerces de proximité, et devenez propriétaire dans un environnement privilégié et résidentiel de l'ouest. Nous vous proposons cette parcelle de 332 m2 qui n'attend plus que votre future maison.
Prix de vente : 220 000 € FAI TTC Prix net vendeur : 208 065 € TTC Honoraires : 11 935 € TTC à la charge du vendeur
Les informations sur les risques auxquels ce bien est exposé sont disponibles sur le site Géorisques : www.georisques.gouv.fr

Caractéristiques de ce terrain à vendre à Saint-Paul (97460)

  • Surface habitable : 332 m²
  • Surface du terrain : 332 m²
  • Référence de l'annonce : 759-02
  • Prix de vente : 220 000 € FAI (Frais d'Agence Inclus)*
Empruntez aux meilleures conditionslogo meilleur taux

Cette annonce immobilière vous est proposée par :

L'AGENCE BY CBO

97438 Sainte-Marie

Ce bien vous intéresse ?
Contactez l'agence dès aujourd'hui...

En savoir plus sur l'agence L'AGENCE BY CBO

Cette agence immobilière propose à ce jour 95 biens à la vente sur Immodesiles.fr.

Vous pouvez consulter le barème d'honoraires de l'agence.

Autres terrains à vendre à Saint-Paul (97460), susceptibles de vous intéresser

a vendre - parcelle viabilisée de 363m2 à marie caze, la plaine saint paul 4 Terrain 363 m² Saint-Paul (97460) terrain 363 m² Entre Savanna et la Plaine Saint Paul, CBo Territoria  développe au coeur du nouveau Quartier de Marie Caze, le lotissement Les Zirondelles. Découvrez ces parcelles viabilisées et prêtes à bâtir, à proximité du lycée Saint-Paul IV, du CHOR et des commerces de proximité, et devenez propriÃ... Réf. 751-09L'agence By Cbo 320 000 € soit 882 € /m² a vendre belle parcelle de terrain au calme à saint-paul bois rouge vue mer. 3 Terrain 1012 m² Saint-Paul (97460) terrain 1012 m² OFIM vous propose ce terrain avec une petite maison à démolir,. Idéalement bien placé dans une impasse au calme et vue mer. Ce terrain est situé à Bois Rouge Saint-Paul, à 20 minutes du centre ville de Saint-Paul. Ce terrain d'environ 1012 m2, viabilisé, n'attend plus que votre projet. Fosse... Réf. 763 LPOfim 342 000 € soit 338 € /m² parcelle de terrain avec vue mer à saint-paul 1 Terrain 349 m² Saint-Paul (97460) terrain 349 m² Belle parcelle de terrain de plus de 300 m², idéalement située à mi-hauteur de Saint-Paul, avec une vue mer exceptionnelle, offrant un cadre agréable et proche de toutes commodités. Ce terrain se trouve en zone Uc6, permettant une construction en R+1+combles avec une hauteur maximale de 9 mèt... Réf. 2852Outremer Immobilier 96 848 € soit 278 € /m² a vendre terrain 300m² centre ville saint paul, ile de la reunion 5 Terrain 1 pièce 300 m² Saint-Paul (97460) 1 pièce, 5 chambres, terrain 300 m² INGAR MOHAMMAD VOUS PROPOSE A VENDRE UN TERRAIN PLAT DE 300M TRS BIEN SITUE DANS LE CENTRE VILLE DE SAINT PAUL , SUR L'ILE DE LA REUNION, PROCHE DE TOUTES COMMODITS. Sur cette parcelle situe en Zone U1C vous pourrez construire jusqu 4 tages + les combles (R+4+ Combles), la totalit du terrain est co... Réf. 6359Teka Immobilier 358 450 € soit 1 195 € /m² 6 Terrain 490 m² Saint-Paul (97460) terrain 490 m² TERRAIN A VENDRE A SAINT PAUL DE LA REUNION, A BELLEMENE, à 380 mètres d'altitude, venez découvrir un terrain borné et plat d'une surface d'environ 490 m² . Vous profiterez d'une micro station neuve qui sera installée par le propriétaire, d'un raccordement en eau potable et d'une vue mer 180... Réf. GMRC-HWN-BLNAct'immo 277 250 € soit 566 € /m²